深圳洪湖花園B-29C
火山
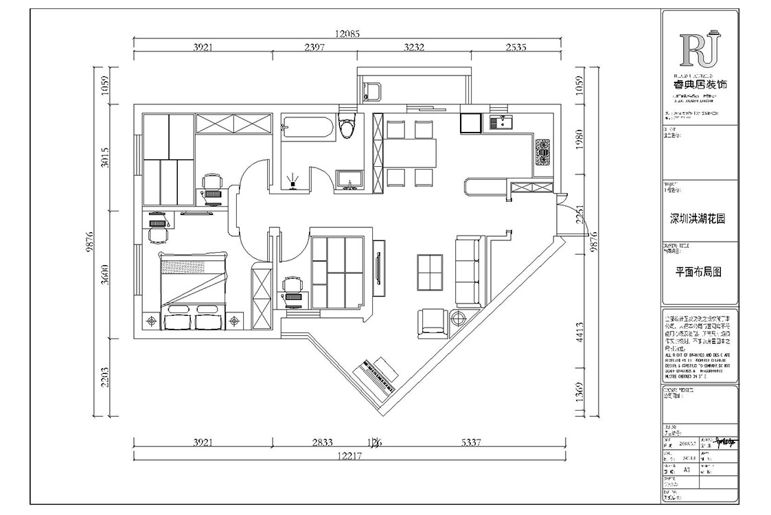
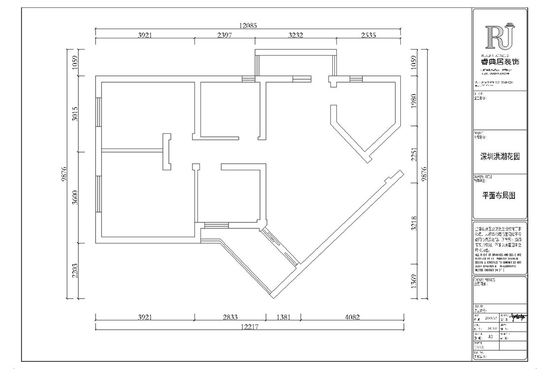
小區:深圳洪湖花園
戶型:四室兩廳
面積:80㎡-90㎡
風格:現代
造價:22W
裝修方案:簡約有致,以冷色調為主
設計理念:現代簡約風格
室內硬裝簡約有致,以冷色調為主,清爽明亮,抓住了現代人生活的居住審美觀,功能性分區明確。當疲憊的身心對家的依戀越發強烈,人們想要的是輕松、自由的環境,“現代簡約風格”自然就成為家居設計的一種風尚。注重大小色塊間的組合,地域性的后期配飾融入設計風格之中。
本案舍棄了諸多冷色調的搭配,以米黃做的主色調整體展開。設計的難點在于戶型結構的異形,針對此異形的結構,設計師也將天花重點設計,客廳的天花依據異形墻體逐步展開,使得整體建構更更顯統一。而諸多玫瑰金的不銹鋼使用,是的相互呼應更加整體。









