中信8A-2203
趙起超
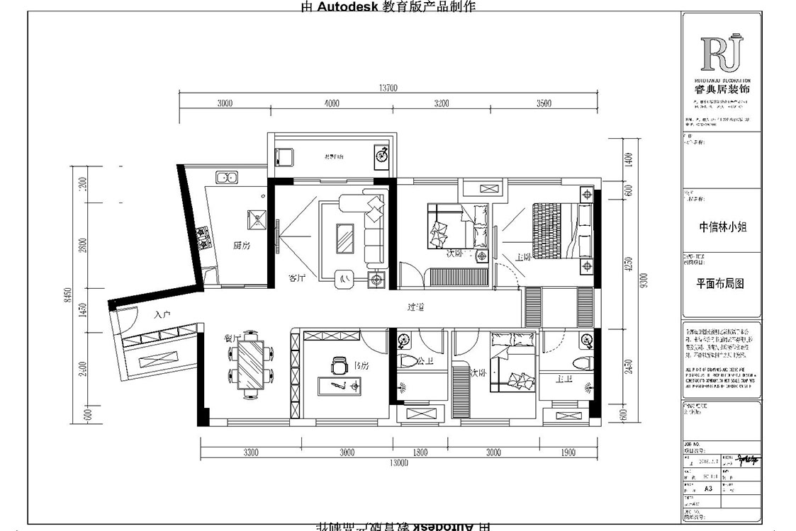
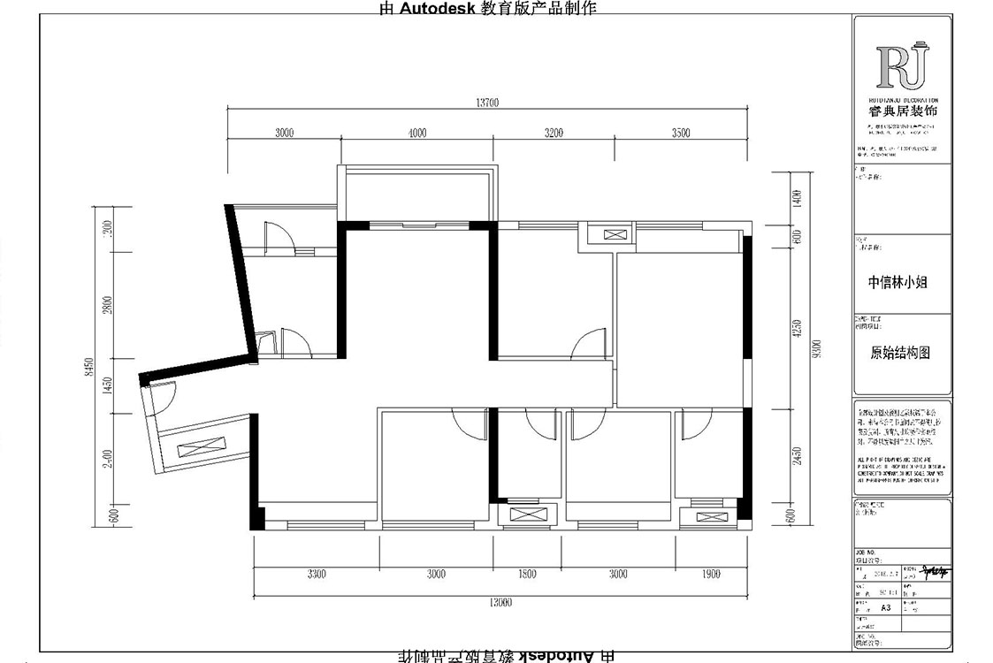
小區:深圳洪湖花園
戶型:四室兩廳
面積:120㎡-140㎡
風格:現代
造價:24W
裝修方案:簡約有致,以冷色調為主
設計理念:現代簡約風格
室內硬裝簡約有致,以冷色調為主,清爽明亮,抓住了現代人生活的居住審美觀,功能性分區明確。當疲憊的身心對家的依戀越發強烈,人們想要的是輕松、自由的環境,“現代簡約風格”自然就成為家居設計的一種風尚。注重大小色塊間的組合,地域性的后期配飾融入設計風格之中。
本案設計亮點在于客餐廳交接的點哪個圓形的天花應用,將客廳與餐廳的尖角輕松,圓潤的過度.整體搭配的電視墻與不銹鋼,突出了強烈的現代感。







