合正丹郡黃先生簡歐
郭星
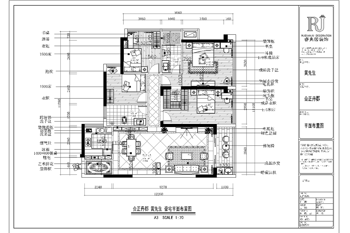
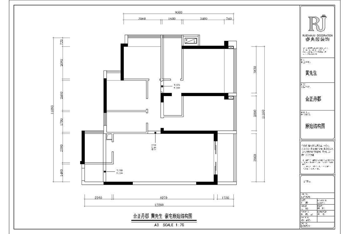
小區:合正丹郡
戶型:四室兩廳
面積:---
風格:歐式
造價:
裝修方案:藉著室內空間的解構和重組
設計理念:簡約、質樸的簡歐設計風格
簡約、質樸的簡歐設計風格是眾多人群所喜愛的,生活在繁雜多變的世界里已是煩擾不休,而簡單、自然的生活空間卻能讓人身心舒暢,感到寧靜和安逸;藉著室內空間的解構和重組,便可以滿足我們對悠然自得的生活的向往和追求,讓我們在紛擾的現實生活中找到平衡,締造出一個令人心弛神往的寫意空間。
小區:合正丹郡
戶型:四室兩廳
面積:---
風格:歐式
造價:
裝修方案:藉著室內空間的解構和重組
設計理念:簡約、質樸的簡歐設計風格
簡約、質樸的簡歐設計風格是眾多人群所喜愛的,生活在繁雜多變的世界里已是煩擾不休,而簡單、自然的生活空間卻能讓人身心舒暢,感到寧靜和安逸;藉著室內空間的解構和重組,便可以滿足我們對悠然自得的生活的向往和追求,讓我們在紛擾的現實生活中找到平衡,締造出一個令人心弛神往的寫意空間。