金沙世紀城9-2-803
趙起超
小區:金沙世紀城
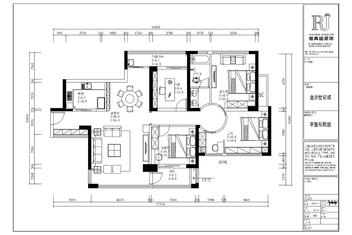
戶型:四室兩廳
面積:140㎡-160㎡
風格:中式
造價:42W
裝修方案:傳遞特定文化氛圍中人們的生活追求
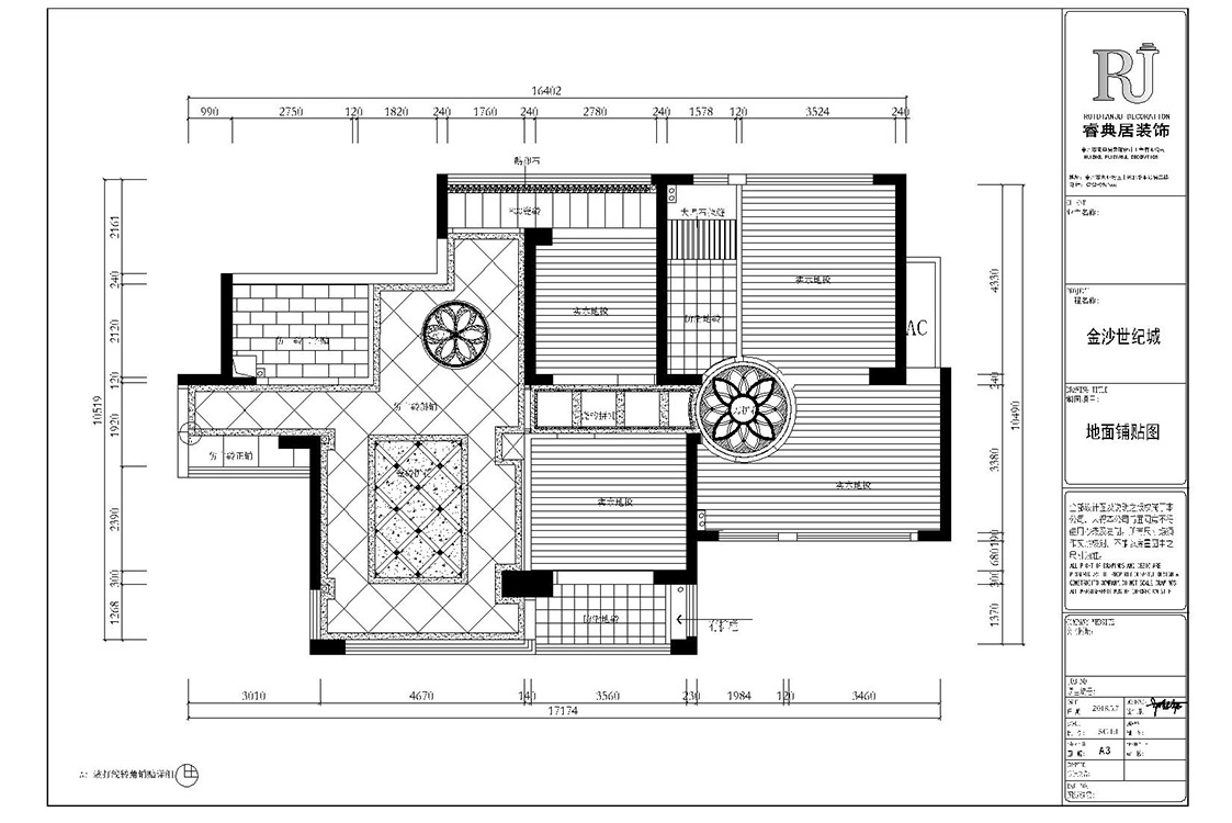
設計理念:無論是大氣的電視背景,還是傲骨的沙發背景,以及臥室床頭的木質線條與硅藻泥的完美結合。都體現了設計師的設計功底,尤其是過道盡頭的那個正圓的造型,更是顯示了設計師對于本案的用心,以及整體設計的把控。
作為一種中式裝修風格與其它西方、東南亞等裝修風格也有很大不同,首先所營造的文化氛圍是不同的,每一種裝修風格都有其特定的文化背景作為支撐,以此來傳遞特定文化氛圍中人們的生活追求,那么新中式古典主義風格是以中國傳統古典文化作為背景的,營造的是極富中國浪漫情調的生活空間,紅木、青花瓷、紫砂茶壺以及一些紅木工藝品等都體現了濃郁的東方之美,這正是中式古典主義風格與其它風格所不同的地方。這種風格滲透了東方華夏幾千年的文明,因此不管是中國人還是外國人都非常的喜歡這種中式裝修風格,它不僅永不過時,而且時間愈久愈散發出迷人的東方魅力。
而在本案的設計中,無論是大氣的電視背景,還是傲骨的沙發背景,以及臥室床頭的木質線條與硅藻泥的完美結合。都體現了設計師的設計功底,尤其是過道盡頭的那個正圓的造型,更是顯示了設計師對于本案的用心,以及整體設計的把控。
















