彩虹城王先生
李小杰
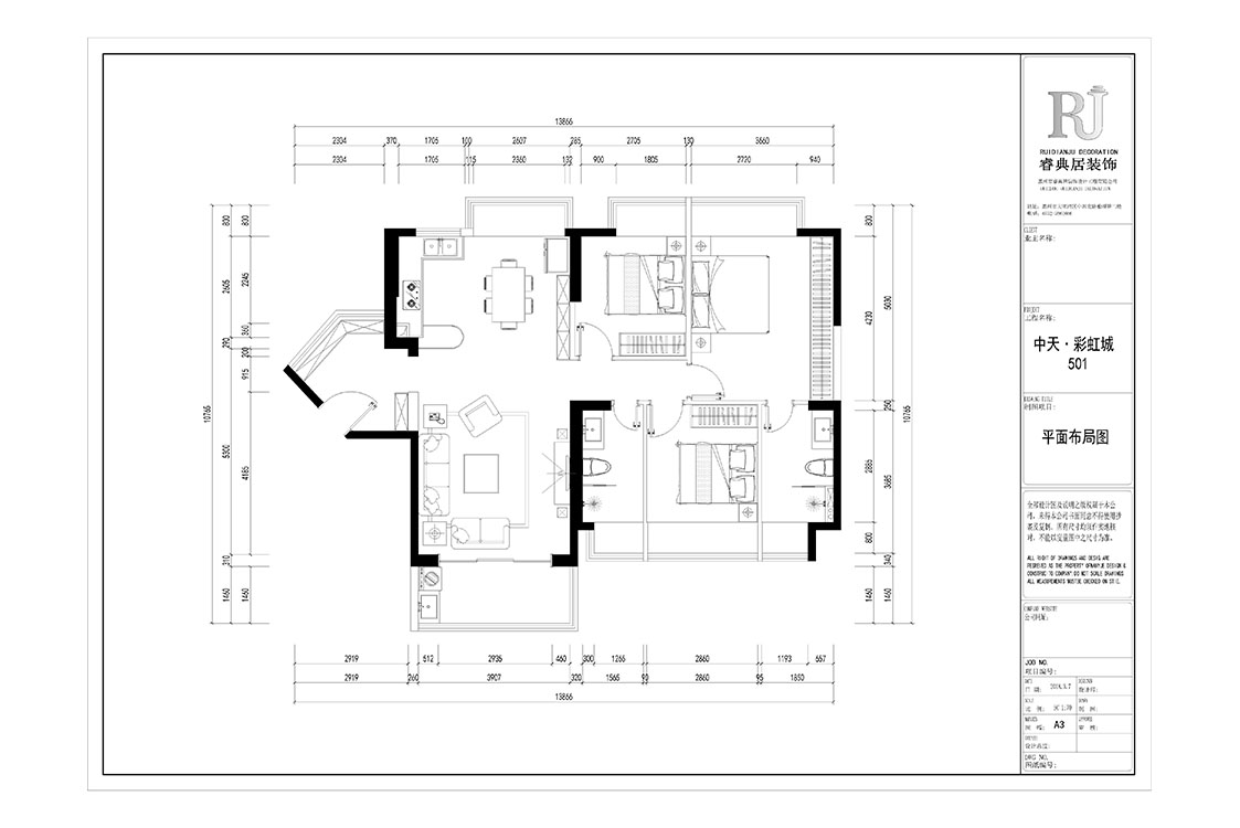
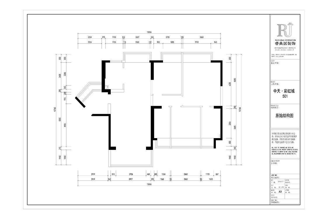
小區:彩虹城
戶型:三室兩廳兩衛
面積:100㎡-120㎡
風格:現代
造價:16萬
裝修方案:人們的品味源于對時代的提取。空間的形式感源于人們對新事物不斷的感知再重塑。
設計理念:華麗的光與事物的視覺盛宴
人們的品味源于對時代的提取。空間的形式感源于人們對新事物不斷的感知再重塑。一個空間應該有一個屬于自己的故事。就像一面鏡子,它呈現出的并不是簡單的重復,而是一場華麗的光與事物的視覺盛宴。
小區:彩虹城
戶型:三室兩廳兩衛
面積:100㎡-120㎡
風格:現代
造價:16萬
裝修方案:人們的品味源于對時代的提取。空間的形式感源于人們對新事物不斷的感知再重塑。
設計理念:華麗的光與事物的視覺盛宴
人們的品味源于對時代的提取。空間的形式感源于人們對新事物不斷的感知再重塑。一個空間應該有一個屬于自己的故事。就像一面鏡子,它呈現出的并不是簡單的重復,而是一場華麗的光與事物的視覺盛宴。