潤園
駱天華
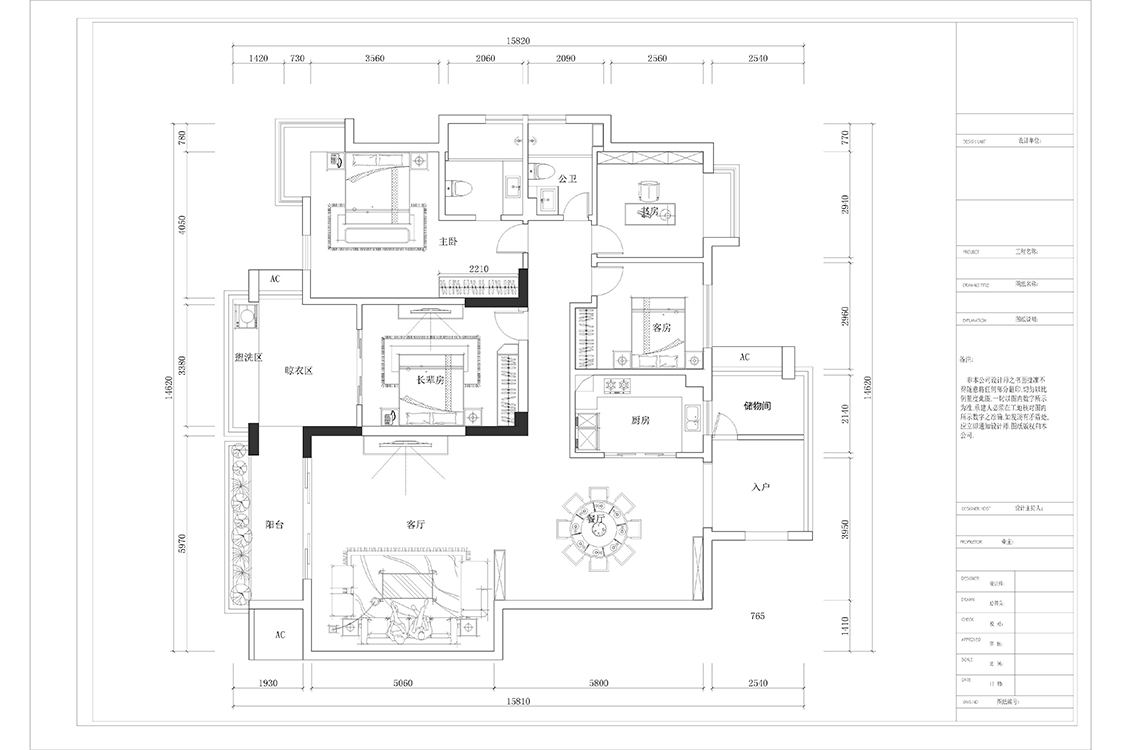
小區:潤園
戶型:四室兩廳
面積:160㎡-180㎡
風格:現代
造價:---
裝修方案:挑選色彩高雅間或跳脫的軟裝陳列品,制造視覺沖擊
設計理念:人們的品味源于對時代的提取。
人們的品味源于對時代的提取。空間的形式感源于人們對新事物不斷的感知再重塑。一個空間應該有一個屬于自己的故事。就像一面鏡子,它呈現出的并不是簡單的重復,而是一場華麗的光與事物的視覺盛宴。
同時挑選色彩高雅間或跳脫的軟裝陳列品,制造視覺沖擊,造型別致的燈具則是妝點,同時有力地營造了溫馨居家氛圍。層次豐富、肌理有別的軟裝物件環環相應,與空間碰撞出雅致有趣的美學體驗。
設計師對于空間主體——客廳的色調把控十分克制,以大面積的藍色作為主色調,突出設計上簡單的結構與簡潔的線條,加入米黃色的地毯,使空間既有棱角又有細膩的溫度







