Copyright © 惠州市睿典居裝飾設計工程有限公司 粵ICP備18048455號
技術支持:廈門易爾通網絡科技有限公司 人才支持:廈門人才網
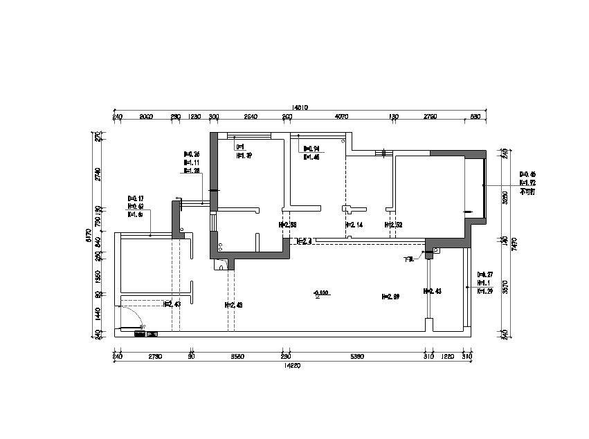
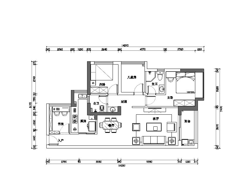
小區:龍光城
戶型:三室兩廳兩衛
面積:80㎡-90㎡
風格:現代
造價:
裝修方案:
設計理念: